Açıklama
LYCIAN DREAM Luxery yacht service NASYACHT Charter
LYCIAN DREAM a luxerous 26 m superyacht from NASYACHT in Bodrum, Göcek, Marmaris, Fethiye, Çeşme, Antalya, Alaçatı, Kaş, Kemer, Selimiye, Gökova, Greek Islands, Kos, Mykonos, Kos, Nisyros, Symi, Rodos, Chios island and Mediteranean.
VIP, Private & bespoke service.
Luxery Sailyacht available for charter with NASYACHT. This superyacht offers spacious cabins, elegant interiors
premium amenities, and professional crew for unforgettable Blue Cruise experiences in TURKEY and the Mediterranean.
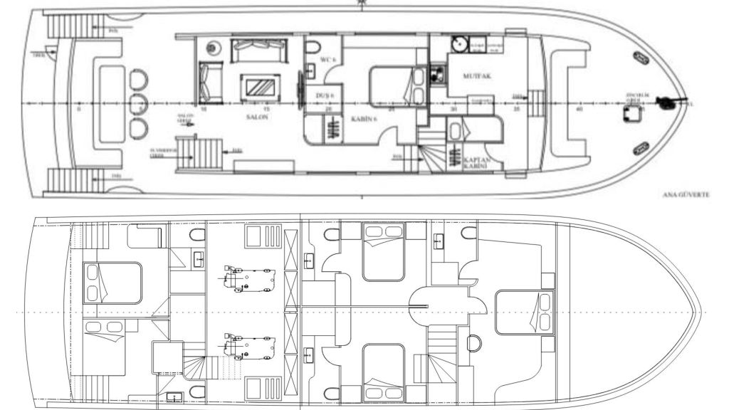
This yacht is a 6 cabin 26 m 12 guest luxery motoryacht designed for elite charter guests seeking absolute comfort, elegance and discretion. With spacious cabins refined interious anfd large outdoor living areas,
LYCIAN DREAM offers an exceptional superyacht experience in the Mediterranean.
Avaible for charter from Bodrum, Göcek, Marmaris, Fethiye, Çeşme, Antalya, Alaçatı, Kaş, Kemer, Selimiye, Gökova, Greek Islands, Kos, Mykonos, Kos, Nisyros, Symi, Rodos, Chios island and Mediteranean, LYCIAN DREAM is ideal for families, high-profile guests and private VIP groups.
NASYACHT provides exclusive chareter management for LYCIAN DREAM
delivering personalized itineraries, private trasfers, onboard fine dining and confidentiality for every quest.
you tube canal : https://www.youtube.com/channel/UC4sfpqbwgX3cHtWZdVmGk3A
Lycian Dream – 7 Reasons to Experience a Luxury Trawler Charter in Fethiye
Luxury Trawler Yacht Built in 2024
Lycian Dream is a modern luxury trawler yacht built in 2024, offering a refined and comfortable blue cruise experience along the Turkish Riviera. With an overall length of 26 meters, this newly built vessel combines elegant exterior lines with strong naval architecture, making her an excellent choice for long and relaxed voyages in the Aegean and Mediterranean seas.
Spacious Accommodation for Up to 12 Guests
Designed with comfort in mind, the yacht accommodates up to 12 guests in 6 well-appointed cabins. Each cabin features a private en-suite bathroom, air conditioning, modern interior design, and high-quality bedding. This layout makes the yacht ideal for families, groups of friends, or guests seeking a premium charter experience in complete privacy.
Comfort-Oriented Interior Design
The interior living spaces are bright, spacious, and tastefully decorated with contemporary materials. The saloon offers a comfortable seating area and dining space, creating a welcoming atmosphere for relaxing after a day at sea. Large windows provide natural light and uninterrupted sea views throughout the journey.
Smooth Cruising Performance
With a cruising speed of 11 knots and a maximum speed of 14 knots, the yacht delivers a smooth and fuel-efficient cruising experience. Her trawler-style hull ensures excellent stability, reduced noise levels, and enhanced comfort, especially during longer passages between anchorages.
Fethiye Home Port and Blue Cruise Routes
Based in Fethiye, one of Turkey’s most popular yachting destinations, Lycian Dream offers easy access to iconic blue cruise routes. Guests can explore Göcek bays, Butterfly Valley, Gemiler Island, and numerous secluded coves surrounded by crystal-clear waters and untouched nature.
Outdoor Living and Sunbathing Areas
The yacht features generous outdoor areas designed for relaxation and socializing. Sunbathing cushions, shaded seating areas, and outdoor dining spaces allow guests to enjoy the Mediterranean climate throughout the day. Whether anchored in a quiet bay or cruising between destinations, the deck areas provide a perfect balance of comfort and open-air living.
Water Toys and Sea Activities
For guests who enjoy adventure on the water, the yacht is equipped with a selection of water toys. Available activities include waterski, wakeboard, ringo, and paddle board. These options ensure both excitement and entertainment for guests of all ages during the charter.
Professional Crew and Personalized Service
A professional and experienced crew is onboard to ensure a seamless and enjoyable experience. From navigation and safety to daily service and local guidance, the crew is dedicated to delivering high standards of hospitality while respecting guest privacy.
Why Choose This Yacht for Your Blue Cruise
Combining modern design, spacious accommodation, and reliable performance, Lycian Dream stands out as a premium trawler yacht for charter in Fethiye. Her 2024 build, well-balanced layout, and wide range of onboard amenities make her an excellent choice for guests seeking comfort, style, and unforgettable memories at sea.
Plan Your Dream Yacht Charter
Experience the beauty of the Mediterranean aboard Lycian Dream and enjoy a relaxing blue cruise surrounded by turquoise waters and breathtaking scenery. This luxury trawler offers the perfect setting for a memorable yacht holiday in Turkey.
General Specifications
Water Toys















































Değerlendirmeler
Henüz değerlendirme yapılmadı.